0573-86121188
Welcome
欢迎来到海盐中海成套建设有限公司官方网站
案例展示
Case show
Case show
  
现代风小宅  舒适治愈的家

现代风小宅 舒适治愈的家

设计师:俞铭超

从业经验:6年

擅长风格:现代,新中式等

设计理念:年轻有为的他,不安于现状,不甘于平庸,用想象创造未来。

0.00
0.00
  

设计师:俞铭超

从业经验:6年

擅长风格:现代,新中式等

设计理念:年轻有为的他,不安于现状,不甘于平庸,用想象创造未来。

当疲惫的身心对家的

依恋越来越强烈

人们开始想要

轻松自由的环境

“现代简约风”自然就成为

家居设计的一种新风尚


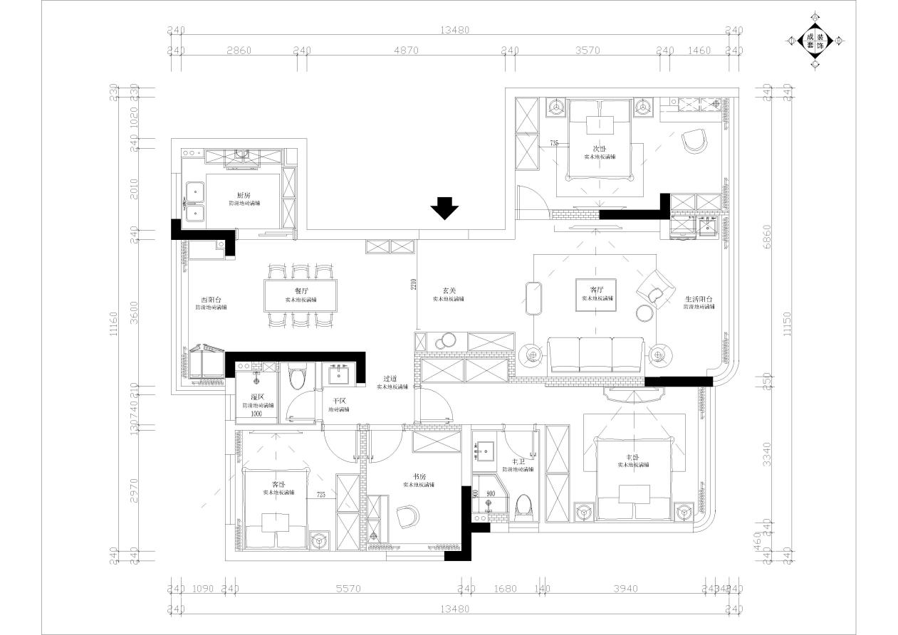
房屋信息

项目户型:4房2厅2卫

项目面积:143m²

设计风格:现代

装修方式:半包

设计单位:

海盐中海成套装饰有限公司


平面图 

去繁就简,使人保持愉快心情

干净简洁的现代简约风

重点在于装修的简单

然而家居更注重色彩合理搭配

能够创造出富有意境

和个性化的环境

给人视觉上的享受


客厅

客厅以白色和原木色

为基础色调

让客厅风格显得

干净明快,纯洁安宁

米白色沙发和木质茶几

搭配上橘棕单人沙发

与大沙发上的抱枕相呼应

配上一些绿植

富有勃勃生机


餐厅

餐厅的主照明为餐桌上的3盏吊灯

并在天花板安装小型灯辅助

吊灯可以适度降低照明高度

让小坪数的天花板看来更有深度

能在夜晚营造出温馨气氛

整体以原木天然的

质感,淡雅的色泽

让整个空间散发着一种

难得的自然韵味

这种搭配无论什么时候都不会过时


全景 

整个空间营造出了宁静舒适的氛围

应对现在都市生活和工作压力大...

回到家就能很惬意的躺着 安静释放

越来越多人崇尚极简 禅意 淡雅

这也是生活本质的需求和选择

案例赏析

Case

appreciation

立即预约

现代化的简约设计,文化的碰撞融合,独具匠心的设计