房屋信息
房屋信息:八室二厅5卫
项目面积:别墅
设计风格:新中式
装修方式:半包
设计师:陆敏飞
设计施工单位:海盐中海成套装饰有限公司
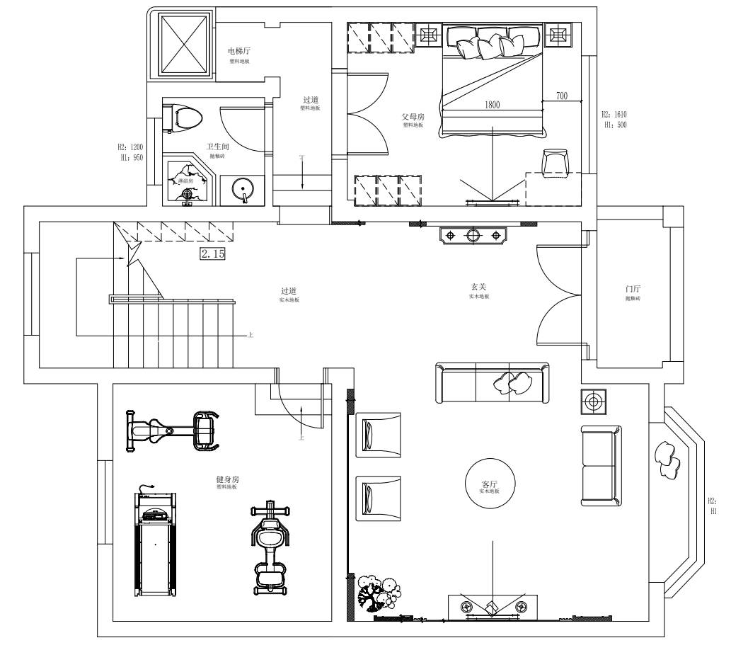
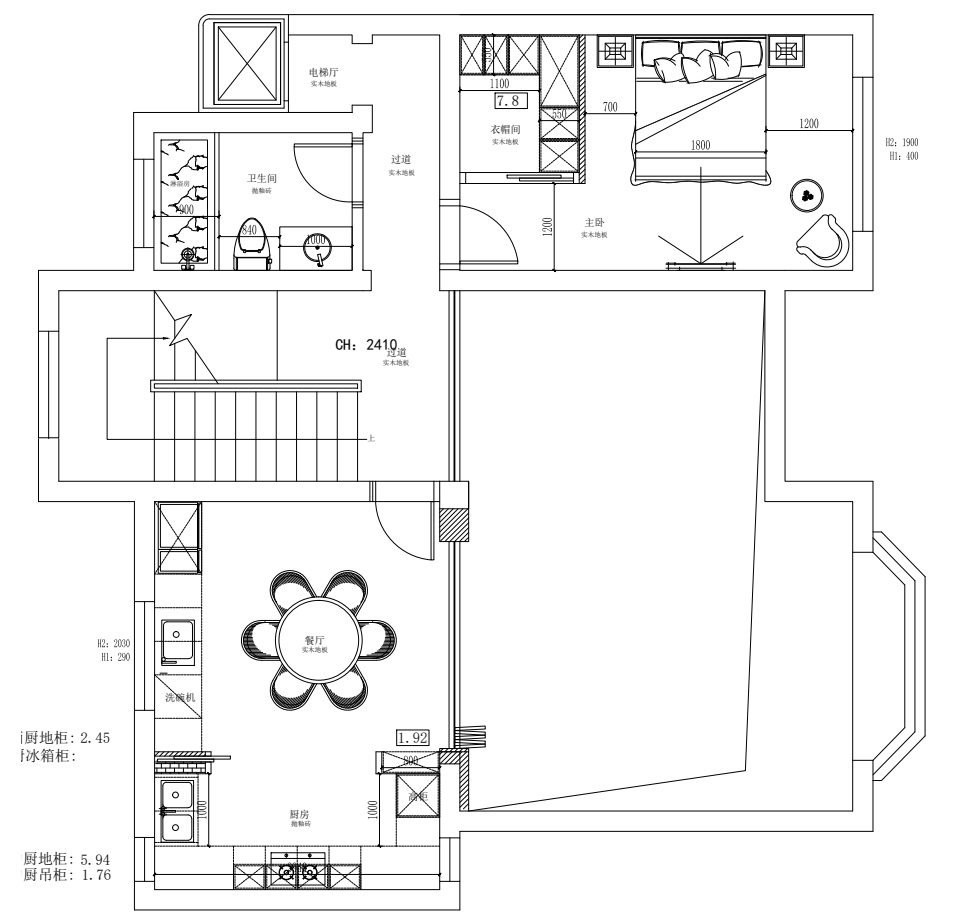
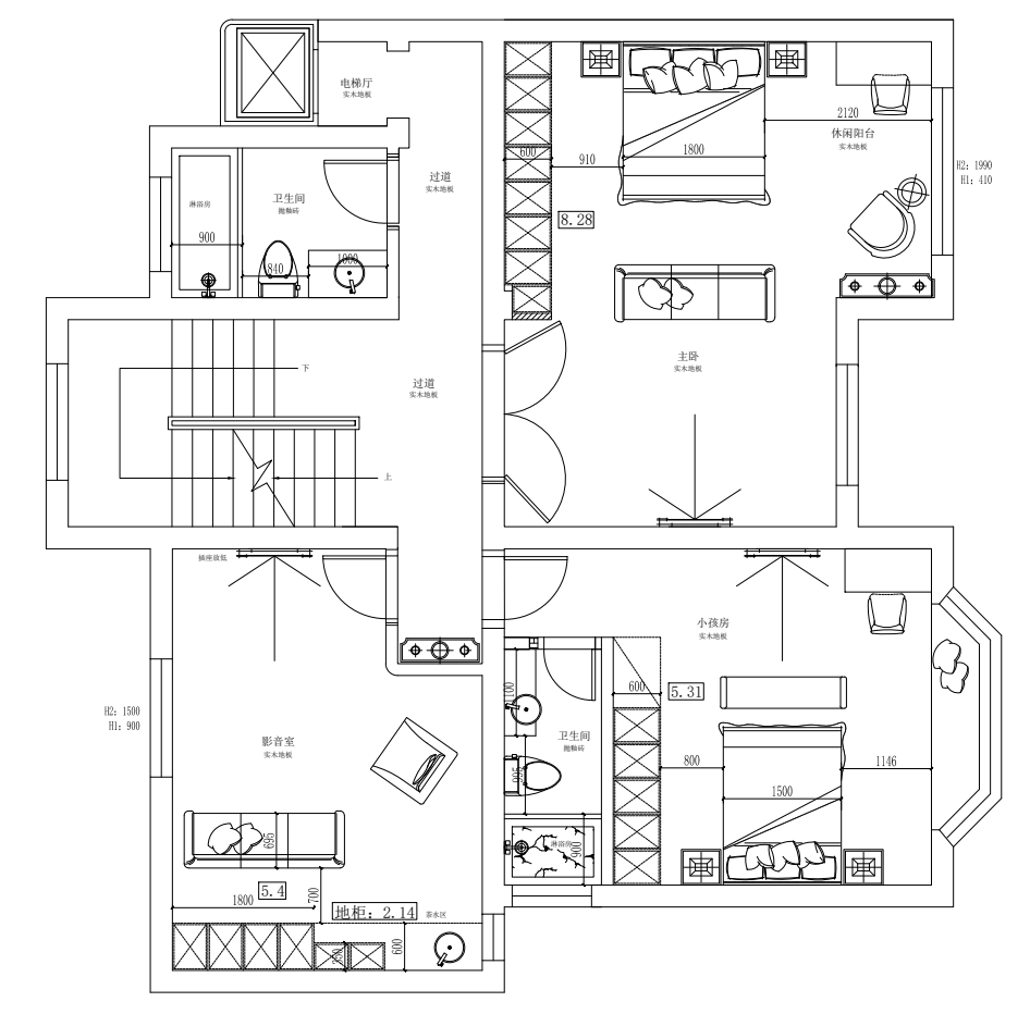
·平面图·




本案的整体结构根据业主的家庭结构改造,所以在功能布局上除去每个人的居住空间、健身房等都是用来作为家庭厅的形式分布。
家里保留了客卧,偶尔亲戚朋友到家来的时候可以小住几天。休闲阳台,不仅可以休息玩耍,还促进了他们的日常交流交往。
·客厅·

别墅客厅拥有超高的空间,这样的电视背景墙,采用木饰面与岩板无缝拼接的设计,使整体效果更加大气震撼。

超好看的山水画艺术漆背景墙,自带神秘优雅中国风韵味。

古典质朴与现代设计相结合,木质家具与材料营造了空间的稳重感,空间多用直线塑造工整细致,古朴内敛的东方气韵。
白色和红木色搭配的主基调颜色提亮了整个空间,扩宽了空间视觉,同时又中和古板沉闷感。
·餐厅·

炊烟袅袅,最扶人间烟火气。置身于餐厅,造型端庄的餐椅体现中式传统形式的概念美,木质橱柜静立一侧,
中式吊灯的设计,赋予木质光影灵动之美,纵使风尘仆仆归家,落座共餐,时间恰好。
·卧室·

超大空间的卧室在保证其功能齐全的情况下,在床尾可以放置一个沙发或者小茶几,
有时可以坐来下来看看书喝喝茶,也是一个不错的选择。

卧室的设计完全利用了空间的造型,床被摆放在通透的地方,无论清晨还是日暮,都充满阳光,
线条简约且有秩序的排布,中式元素与现代风格巧妙的融合、碰撞,彰显不凡审美品位。
·影音厅·

现在还去什么电影院,轻松一步让你get足不出户的巨幕观影体验。
宽敞开阔的私人空间加深邃璀璨的星空顶,搭配高品质的放映器材和舒适的软装家具,氛围感瞬间拉满。