0573-86121188
Welcome
欢迎来到海盐中海成套建设有限公司官方网站
案例展示
Case show
Case show
  
江渭别墅

江渭别墅

设计师:陆敏飞

从业经验:12年


擅长风格:简美、现代、北欧、新中式、轻奢等


设计理念:用最简单的视觉语言表达最深刻的内涵!



0.00
0.00
  

设计师:陆敏飞

从业经验:12年


擅长风格:简美、现代、北欧、新中式、轻奢等


设计理念:用最简单的视觉语言表达最深刻的内涵!




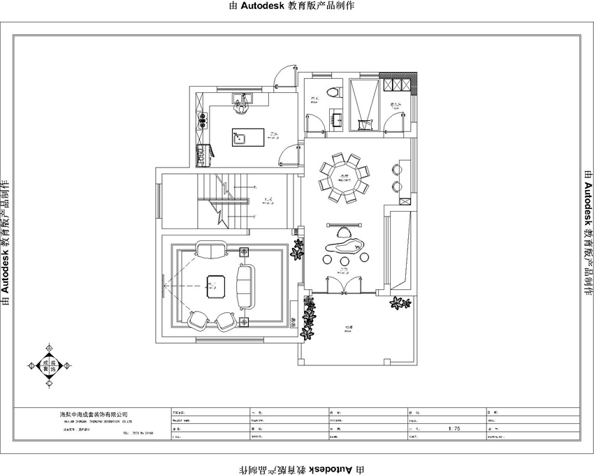
一层平面图

客厅

米色的墙壁散发着温馨的气息,简约大气的摆设透露着主人不凡的品味。

餐厅

同样实木的设计与其他空间交相辉映。一张餐桌、几把座椅,品质生活一览无遗。

玄关

雅居之风韵

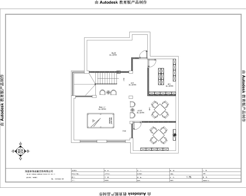
地下室平面图

地下室

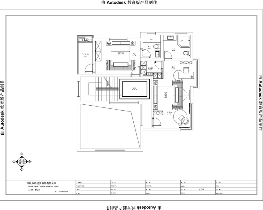
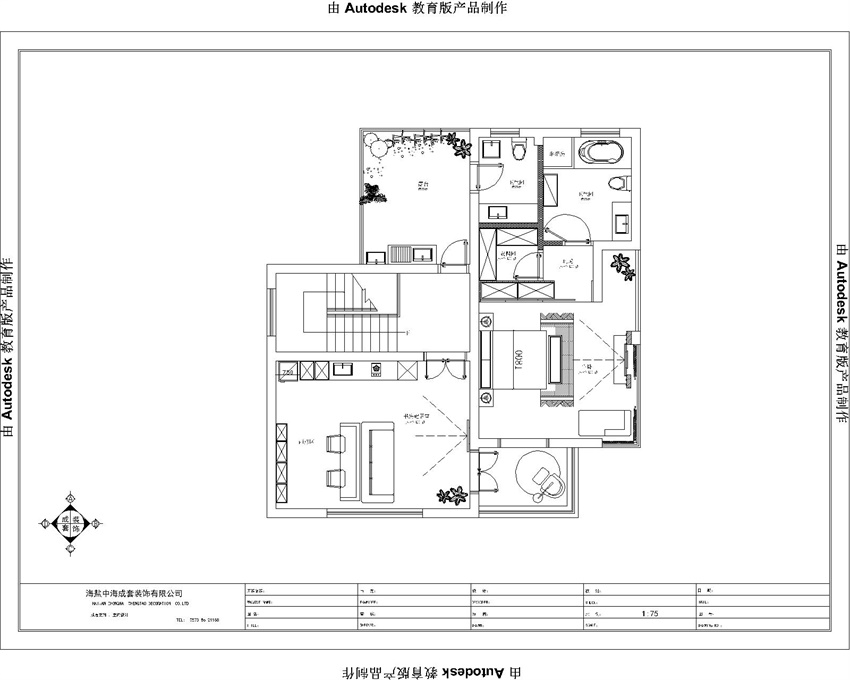
二层平面图

三层平面图

主卧

朝阳的落地窗伫立,午后的阳光撒入房间,暖意洋洋,舒服无比。

站在这一尘不染的落地窗前,看春意正暖、看夏花灿烂、看蝴蝶飞舞看秋日落叶、看冬日飞雪,一日一日,岁月仿佛静止一般,现世安好,心情舒畅。

材料和饰品是最好的装饰,整齐的书架设计,增强了视觉效果,在舒适的基础上,又为起居室增加了设计的美感。

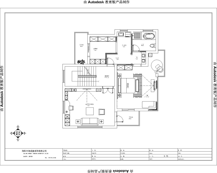
四层平面图

主卧

设计师将更多的融入对细节的追求,从床头挂画到床头柜的装饰,每一样都精心挑选。

色彩出挑的抱枕,营造出优雅不纤弱、低调但奢华的氛围。


案例赏析

Case

appreciation

立即预约

现代化的简约设计,文化的碰撞融合,独具匠心的设计